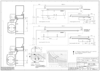
Guide rail 1-leaf
TS 5000 L Overhead door closer with guide rail, for opposite hinge side, for single leaf doors of up to 1400 mm leaf width
- Closing force of EN 2-6 with variable adjustment
- Can be used for right and left hand doors without conversion
- Hydraulic latching action which accelerates the door shortly before it is closed
- Closing speed can be individually adjusted
- Integrated back check, slows down doors that are thrown open forcefully
- Visual closing force display for easy control of the setting
- All functions can be adjusted from the front
Application Areas
- Fire and smoke protection doors
- Right and left single-action doors
- Single-action doors up to 1400 mm leaf width
- Door leaf installation opposite hinge side and transom installation hinge side
Installation situations in reference objects and videos
Technical data
| TS 5000 L | |
| Closing force in accordance with EN 1154 | EN 2 - 6 |
| Barrier-free in accordance with DIN 18040 up to leaf width (max.) in mm | 1100 mm |
| Leaf width (max.) | 1400 mm |
| Type of installation | Transom installation hinge side, Door leaf installation opposite hinge side |
| Opening angle (max.) | 120 ° |
| Suitability for fire protection doors | Yes |
| Closing force adjustable | Yes, stepless |
| Adjustable closing speed | Yes |
| Latching action adjustable | Yes, via valve |
| Back check integrated | Yes, hydraulically adjustable |
| Position of closing force adjustment | Front |
| Visual closing force display | Yes |
| Hold-open function | Optional |
Downloads
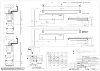
TS 5000 door closer
LABELLING OBLIGATION:
© GEZE GmbH
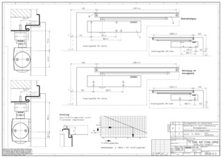
Door closer TS 5000, vertically adjustable guide rail
LABELLING OBLIGATION:
© GEZE GmbH
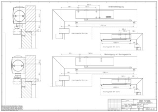
TS 5000 door closer
LABELLING OBLIGATION:
© GEZE GmbH
Door closer - TS 5000 L + Swing door drive - TSA 160 NT at BMW Welt
LABELLING OBLIGATION:
© Robert Sprang / GEZE GmbH
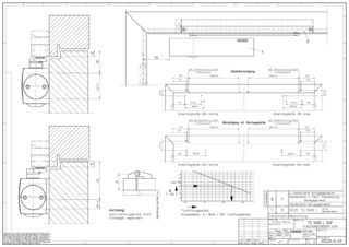
GEZE TS 5000 L and guide rail BG lintel mounting TS 3/5000 L
LABELLING OBLIGATION:
© GEZE GmbH
Overhead door closer system with guide rail - TS 5000 L + swing door drive TSA 160 NT, BMW Welt
LABELLING OBLIGATION:
© Robert Sprang / GEZE GmbH
Variants & Accessories
Contact
We would be happy to assist you
+49-7152-203-0
Mo–Thu: 7.30 a.m. – 5 p.m. / Fri: 7.30 a.m. – 4 p.m
Hotline for architects
+49-7152-203-112
Mo-Thu: 9:00 a.m. - 4:00 p.m. / Fri: 9:00 a.m. - 3:00 p.m.
Service Hotline
+49-1802-923392
(0.06 € / Calling from landline, mobile telephony max. 0.42 €)