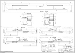
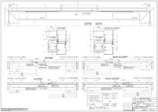
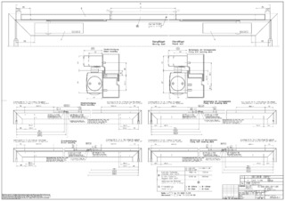
Guide rail 2-leaf

TS 5000 E-ISM ECline Overhead door closer system with guide rail for barrier-free, easy-to-open double leaf doors up to 1250 mm leaf width in accordance with DIN 18040 with integrated closing sequence control and electric hold-open device

Door closer TS 5000 L-ISM 2-leaf overhead door closer system with integrated mechanical closing sequence control, standard installation on door leaf/opposite hinge side
  • System with two door closers TS 5000 ECline and an E-ISM guide rail
  • Closing force of EN 3-5 with variable adjustment
  • Operating voltage 24 V DC
  • Can be used for right and left hand doors without conversion
  • The passive leaf is electrically held open in the guide rail, hold-open area 80°-130°.
  • Active leaf is held open by a hold-open magnet or door closer with free swing function
Show more
  • Closing sequence control holds the active leaf in the waiting position until the passive leaf is closed
  • Hydraulic latching action which accelerates the door shortly before it is closed
  • Closing speed can be individually adjusted
  • Integrated back check, slows down doors that are thrown open forcefully
  • Visual closing force display for easy control of the setting
  • All functions can be adjusted from the front
  • Query that the door leaf is held open via a potential-free contact on the electric hold-open device
Contact us

Application Areas

  • Fire and smoke protection doors
  • Right and left double leaf single-action doors
  • Single-action doors up to 2500 mm hinge clearance, overlength up to 3200 mm
  • Symmetrical and asymmetrical division of door possible
  • Door leaf installation hinge side
  • Hold-open systems with integrated hold-open device

Technical data

TS 5000 E-ISM ECline
Barrier-free in accordance with DIN 18040 up to leaf width (max.) in mm 1250 mm
Leaf width (max.) 1250 mm
Type of installation Door leaf installation hinge side
Opening angle (max.) 180 °
Input voltage 24 V DC
Minimum hinge clearance 1300 mm
Minimum passive leaf width 400 mm
Suitability for fire protection doors Yes
Closing force adjustable Yes, stepless
Adjustable closing speed Yes
Latching action adjustable Yes, via valve
Back check integrated Yes, hydraulically adjustable
Position of closing force adjustment Front
Visual closing force display Yes
Hold-open function Electrical
Hold-open device on the active leaf / passive leaf Yes / Yes
Hold-open range 80 ° - 130 °
Closing sequence control integrated Yes

Downloads

Variants & Accessories

Contact

We would be happy to assist you +49-7152-203-0 Mo–Thu: 7.30 a.m. – 5 p.m. / Fri: 7.30 a.m. – 4 p.m Hotline for architects +49-7152-203-112 Mo-Thu: 9:00 a.m. - 4:00 p.m. / Fri: 9:00 a.m. - 3:00 p.m. Service Hotline +49-1802-923392 (0.06 € / Calling from landline, mobile telephony max. 0.42 €)