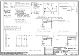
ECturn
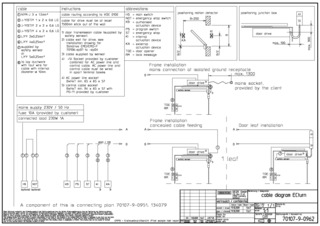
ECturn swing door drive system Electromechanical swing door drive system for barrier-free single leaf doors up to 125 kg
- Opening and closing speed can be individually adjusted
- Electrical latching action which accelerates the door shortly before the closed position
- Low-energy function opens and closes the door with reduced speed, fulfilling the highest safety demands
- Obstacle detection detects an object through contact and stops the opening or closing process
- Automatic reversing detects an obstacle and returns to the opening position
- Push & Go function triggers the automatic drive following light manual pressure on the door leaf
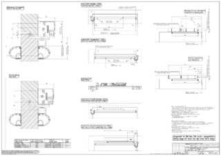
- Drive can be used with guide rail or link arm
- Glass guide rail available for use on glass doors with a glass thickness of 8-10 mm
- Optional rechargeable battery provides maximum safety during a power failure
- Optional radio reception board for wireless activation by radio transmitter
Application Areas
- Single-action, single leaf, right and left closing doors
- Single-action doors up to 1100 mm leaf width or 125 kg weight
- Entrance and interior doors with moderate access frequency
- Automation of frameless all-glass doors
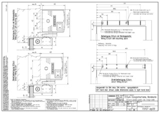
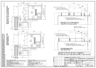
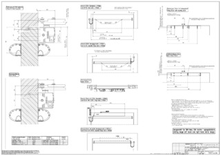
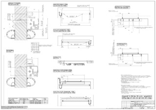
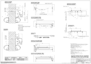
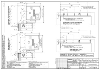
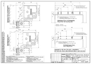
- Door leaf installation and transom installation
- Barrier-free access
Installation situations in reference objects and videos
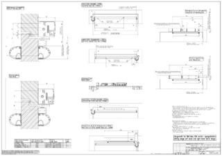
Technical data
| ECturn swing door drive system | |
| Height | 60 mm |
| Width | 580 mm |
| Depth | 60 mm |
| Leaf weight (max.) 1-leaf | 125 kg |
| Leaf width (min.-max.) | 650 mm - 1100 mm |
| Reveal depth (max.) | 200 mm |
| Door overlap (max.) | 50 mm |
| Drive type | Electromechanical |
| Opening angle (max.) | 110 ° |
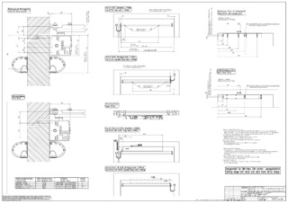
| DIN left | Yes |
| DIN right | Yes |
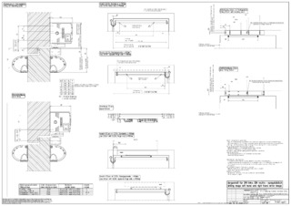
| Transom installation opposite hinge side with link arm | Yes |
| Transom installation opposite hinge side with guide rail | Yes |
| Transom installation hinge side with guide rail | Yes |
| Transom installation opposite hinge side with guide rail on all-glass doors | Yes |
| Transom installation hinge side with guide rail on all-glass doors | Yes |
| Door leaf installation opposite hinge side with guide rail | Yes |
| Door leaf installation hinge side with guide rail | Yes |
| Door leaf installation hinge side with link arm | Yes |
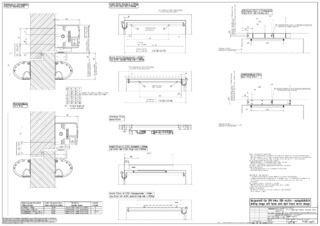
| Electrical latching action | Yes |
| Disconnection from mains | Main switch in the drive |
| Activation delay (max.) | 10 s |
| Operating voltage | 110 – 230 V |
| Power rating | 75 W |
| Power supply for external consumers (24 V DC) | 600 mA |
| Service temperature | -15 - 50 °C |
| IP rating | IP20 |
| Mode of operation | Off, Automatic, Permanently open, Night |
| Type of function | Fully automatic |
| Automatic function | Yes |
| Low-energy function | Yes |
| Key function | Yes |
| Obstacle detection | Yes |
| Automatic reversing | Yes |
| Push & Go | adjustable |
| Operation | Programme switch TPS, Programme switch integrated in the drive |
| Parameter setting | Programme switch DPS, Control unit |
| Standard conformity | EN 16005 |
Downloads
ECturn
LABELLING OBLIGATION:
© GEZE GmbH
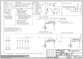
ECturn swing door drive
LABELLING OBLIGATION:
© Studio BE / GEZE GmbH
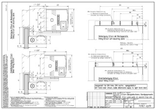
Swing door drive ECturn with elbow switch LS990
LABELLING OBLIGATION:
© Studio BE / GEZE GmbH
Swing door drive ECturn with guide rail
LABELLING OBLIGATION:
© Studio BE / GEZE GmbH
Swing door drive ECturn with guide rail
LABELLING OBLIGATION:
© Studio BE / GEZE GmbH
Variants & Accessories
Contact
We would be happy to assist you
+49-7152-203-0
Mo–Thu: 7.30 a.m. – 5 p.m. / Fri: 7.30 a.m. – 4 p.m
Hotline for architects
+49-7152-203-112
Mo-Thu: 9:00 a.m. - 4:00 p.m. / Fri: 9:00 a.m. - 3:00 p.m.
Service Hotline
+49-1802-923392
(0.06 € / Calling from landline, mobile telephony max. 0.42 €)