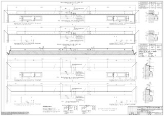
Guide rail 2-leaf

TS 5000 L-R-ISM VP Overhead door closer system with guide rail on opposite hinge side for double leaf doors with anti-panic function up to 2800 mm hinge clearance with integrated closing sequence control, electric hold-open device and smoke switch control unit

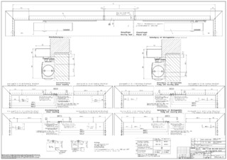
Door closer system TS 5000 R-ISM/0 SoftClose / ECline with HM Overhead door closer with guide rail system for double leaf doors with closing sequence control, smoke switch and integrated back check, which brakes heavily applied doors.
  • System comprising two TS 5000 L door closers and R-ISM guide rail BG VP
  • Closing force of EN 2-6 with variable adjustment
  • Can be used for right and left hand doors without conversion
  • Electric hold-open device in the guide rail with hold-open area from 80°
  • Electric hold-open device in the guide rail with hold-open area of 80°-130°
  • Closing sequence control holds the active leaf in the waiting position until the passive leaf is closed
Show more
  • Hydraulic latching action which accelerates the door shortly before it is closed
  • Closing speed can be individually adjusted
  • Integrated back check, slows down doors that are thrown open forcefully
  • Visual closing force display for easy control of the setting
  • All functions can be adjusted from the front
Contact us

Application Areas

  • Fire and smoke protection doors
  • Double leaf single-action doors
  • Symmetrical and asymmetrical division of door possible
  • Single-action doors up to 2800 mm hinge clearance and 1400 mm leaf width
  • Minimum hinge clearance 1645 mm

Technical data

TS 5000 L-R-ISM VP
Barrier-free in accordance with DIN 18040 up to leaf width (max.) in mm 1400 mm
Leaf width (max.) 1400 mm
Type of installation Door leaf installation opposite hinge side
Opening angle (max.) 130 °
Input voltage 230 V AC
Frequency of supply voltage 50 Hz
Minimum hinge clearance 1645 mm
Minimum passive leaf width 380 mm
Suitability for fire protection doors Yes
Closing force adjustable Yes, stepless
Adjustable closing speed Yes
Latching action adjustable Yes, via valve
Back check integrated Yes, hydraulically adjustable
Position of closing force adjustment Front
Visual closing force display Yes
Hold-open function Electrical
Hold-open device on the active leaf / passive leaf Yes / Yes
Hold-open range 80 °
Smoke switch integrated Yes
Closing sequence control integrated Yes

Downloads

Variants & Accessories

Contact

We would be happy to assist you +49-7152-203-0 Mo–Thu: 7.30 a.m. – 5 p.m. / Fri: 7.30 a.m. – 4 p.m Hotline for architects +49-7152-203-112 Mo-Thu: 9:00 a.m. - 4:00 p.m. / Fri: 9:00 a.m. - 3:00 p.m. Service Hotline +49-1802-923392 (0.06 € / Calling from landline, mobile telephony max. 0.42 €)