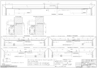
Gleitschiene 2-flügelig

TS 5000 L-R-ISM VP Gleitschienentürschließersystem Bandgegenseite für zweiflügelige Türen mit Antipanikfunktion bis 2800 mm Bandabstand mit integrierter Schließfolgeregelung, elektrischer Feststellung und Rauchschalterzentrale

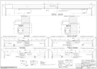
Türschließersystem TS 5000 R-ISM/0 SoftClose / ECline mit HM Gleitschienentürschließersystem für zweiflügelige Türen mit Schließfolgeregelung, Rauchschalter und mit integrierter Öffnungsdämpfung, welche stark aufgeworfene Türen abbremst.
  • System aus zwei Türschließern TS 5000 L und R-ISM-Gleitschiene BG VP
  • Stufenlos einstellbare Schließkraft von EN 2-6
  • Für rechts und links angeschlagene Türen ohne Umstellung verwendbar
  • Elektrische Feststellung in der Gleitschiene mit Feststellbereich ab 80°
  • Elektrische Feststellung in der Gleitschiene mit Feststellbereich 80°-130°
  • Schließfolgeregelung hält den Gangflügel in Warteposition bis der Standflügel geschlossen ist
Mehr anzeigen
  • Hydraulischer Endschlag, der die Tür kurz vor Geschlossenlage beschleunigt
  • Schließgeschwindigkeit kann individuell angepasst werden
  • Integrierte Öffnungsdämpfung, bremst stark aufgeworfene Türen ab
  • Optische Schließkraftanzeige zum leichten Kontrollieren der Einstellung
  • Alle Funktionen von vorn einstellbar
Kontaktieren Sie uns

Anwendungsbereiche

  • Feuer- und Rauchschutztüren
  • Zweiflügelige Anschlagtüren
  • Symmetrische und asymmetrische Türteilung möglich
  • Anschlagtüren bis 2800 mm Bandabstand und 1400 mm Flügelbreite
  • Minimaler Bandabstand 1645 mm

Technische Daten zum Produkt

TS 5000 L-R-ISM VP
Barrierefrei nach DIN 18040 bis Flügelbreite (max.) in mm 1400 mm
Flügelbreite (max.) 1400 mm
Montageart Türblattmontage Bandgegenseite
Öffnungswinkel (max.) 130 °
Eingangsspannung 230 V AC
Frequenz Versorgungsspannung 50 Hz
Minimaler Bandabstand 1645 mm
Minimale Standflügelbreite 380 mm
Eignung Brandschutztüren Ja
Schließkraft einstellbar Ja, stufenlos
Schließgeschwindigkeit einstellbar Ja
Endschlag einstellbar Ja, über Ventil
Öffnungsdämpfung integriert Ja, hydraulisch einstellbar
Position Schließkraftverstellung Vorn
Optische Schließkraftanzeige Ja
Feststellung Elektrisch
Feststellung am Gangflügel / Standflügel Ja / Ja
Feststellbereich 80 °
Rauchschalter integriert Ja
Schließfolgeregelung integriert Ja

Downloads

Varianten & Zubehör

Kontakt

Wir helfen Ihnen gern +49-7152-203-0 Mo – Do: 7.30 – 17.00 Uhr /Fr: 7.30 – 16.00 Uhr Architektenhotline +49-7152-203-112 Mo – Do: 9.00- 16.00 Uhr / Fr: 9.00 – 15.00 Uhr Service Hotline +49-1802-923392 (0,06 € / Anruf aus dem Festnetz, Mobilfunk max. 0,42 €)