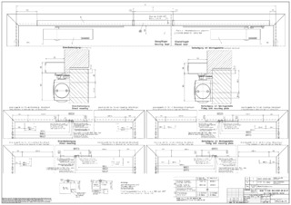
R-ISM-Gleitschiene BG VP TS 5000 Mit Schließfolgeregelung, beidseitiger elektrischer Feststellung, Rauchschalterzentrale und Hebeln
- Integrierte elektrische Feststellung
- Haltekraft der elektromechanischen Feststellung stufenlos einstellbar
- Integrierte Rauchschalterzentrale
- Rauchschalter mit Verschmutzungsanzeige und Alarmschwellennachführung
- Zusätzliche Rauchmelder anschließbar
- Betriebsspannung 230 V AC
- Schließfolgeregelung hält den Gangflügel in Warteposition bis der Standflügel geschlossen ist
- Mit verschraubtem Gleitstein
- Durch Langlöcher in der Montageposition um 4 mm horizontal verstellbar
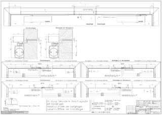
Anwendungsbereiche
- Zweiflügelige Türen mit Schließfolgeregelung
- Feststellanlagen mit integrierter Feststellung und Rauchschalter
- Montage auf der Bandgegenseite
- Rechte und linke Anschlagtüren
- Symmetrische und asymmetrische Türteilung möglich
- Bis 2800 mm Bandabstand
- Minimaler Bandabstand 1645 mm
Technische Daten zum Produkt
| R-ISM-Gleitschiene BG VP TS 5000 | |
| Versorgungsspannung | 230 V |
| Eingangsspannung | 230 V AC |
| Frequenz Versorgungsspannung | 50/60 Hz |
| Einschaltdauer | 100 % |
| Schutzart | IP20 |
| Minimaler Bandabstand | 1645 mm |
| Minimale Standflügelbreite | 380 mm |
| Normkonformität | EN 1155, EN 1158 |
| Zulassungen | Allgemeine bauaufsichtliche Zulassung des DIBt als Feststellanlage |
| Länge | 2645 mm |
| Breite | 55 mm |
| Höhe | 30 mm |
| Öffnungsbegrenzung nachrüstbar | Ja |
| Feststellung | Elektrisch |
| Feststellung überfahrbar | Ja |
| Feststellbereich | 80 ° - 130 ° |
| Rauchschalter integriert | Ja |
| Verschmutzungsanzeige | Ja |
| Alarmschwellennachführung | Ja |
| Netzteil integriert | Ja |
| Schließfolgeregelung integriert | Ja |
| Höhenkorrektur möglich | Ja |
| Flexible Öffnungsbegrenzung | Ja |