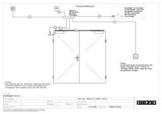
Gleitschiene 2-flügelig

TS 5000 E-ISM/S Gleitschienentürschließersystem für zweiflügelige Türen mit integrierter Schließfolgeregelung und elektrischer Feststellung am Standflügel, für Verwendung mit Haftmagnet am Gangflügel

Türschließer TS 5000 L-ISM Obentürschließersystem für 2-flügelige Türen mit integrierter mechanischer Schließfolgeregelung, Standardmontage auf Türblatt/Bandgegenseite
  • System mit zwei Türschließern TS 5000 und E-ISM/S Gleitschiene mit Feststellung am Standflügel
  • Stufenlos einstellbare Schließkraft EN 2-6
  • Für rechts und links angeschlagene Türen ohne Umstellung verwendbar
  • Elektrische Feststellung in der Gleitschiene des Standflügels, Feststellbereich 80°-130°
  • Feststellung des Gangflügels erfolgt über Haftmagnet oder Freilauftürschließer
  • Schließfolgeregelung hält den Gangflügel in Warteposition bis der Standflügel geschlossen ist
Mehr anzeigen
  • Hydraulischer Endschlag, der die Tür kurz vor Geschlossenlage beschleunigt
  • Schließgeschwindigkeit kann individuell angepasst werden
  • Integrierte Öffnungsdämpfung, bremst stark aufgeworfene Türen ab
  • Optische Schließkraftanzeige zum leichten Kontrollieren der Einstellung
  • Alle Funktionen von vorn einstellbar
  • Abfrage der Offenhaltung des Türflügels über potenzialfreien Kontakt der elektrischen Feststellung
Kontaktieren Sie uns

Anwendungsbereiche

  • Feuer- und Rauchschutztüren
  • Zweiflügelige rechte und linke Anschlagtüren
  • Anschlagtüren bis 2800 mm Bandabstand und 1400 mm Flügelbreite
  • Symmetrische und asymmetrische Türteilung möglich
  • Türblattmontage Bandseite
  • Feststellanlagen mit integrierter Feststellung am Standflügel

Technische Daten zum Produkt

TS 5000 E-ISM/S
Barrierefrei nach DIN 18040 bis Flügelbreite (max.) in mm 1400 mm
Flügelbreite (max.) 1400 mm
Montageart Türblattmontage Bandseite
Öffnungswinkel (max.) 180 °
Eingangsspannung 24 V DC
Minimaler Bandabstand 1300 mm
Minimale Standflügelbreite 400 mm
Eignung Brandschutztüren Ja
Schließkraft einstellbar Ja, stufenlos
Schließgeschwindigkeit einstellbar Ja
Endschlag einstellbar Ja, über Ventil
Öffnungsdämpfung integriert Ja, hydraulisch einstellbar
Position Schließkraftverstellung Vorn
Optische Schließkraftanzeige Ja
Feststellung Elektrisch
Feststellung am Gangflügel / Standflügel Nein / Ja
Feststellbereich 80 ° - 130 °
Schließfolgeregelung integriert Ja

Downloads

Varianten & Zubehör

Kontakt

Wir helfen Ihnen gern +49-7152-203-0 Mo – Do: 7.30 – 17.00 Uhr /Fr: 7.30 – 16.00 Uhr Architektenhotline +49-7152-203-112 Mo – Do: 9.00- 16.00 Uhr / Fr: 9.00 – 15.00 Uhr Service Hotline +49-1802-923392 (0,06 € / Anruf aus dem Festnetz, Mobilfunk max. 0,42 €)