E 170/2, 230 V bis 2400 mm

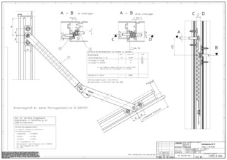
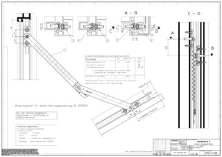
Sicherheitsschere Nr. 35 Für die Absicherung von Kippflügeln

Sicherheitsschere Nr. 35 Sorgt für eine permanente Verbindung zwischen Flügel und Rahmen
  • Ermöglichen eine dauerhaft feste Verbindung zwischen Fensterrahmen und Fensterflügel
  • Einsetzbar ab einer Flügelhöhe von 300 mm
  • Je nach Flügelhöhe und Flügelgewicht kann eine Öffnungsweite bis ca. 700 mm realisiert werden
  • Pro Fensterflügel werden zwei Sicherheitsscheren benötigt
Kontaktieren Sie uns

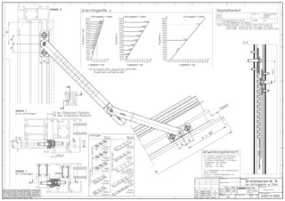
Anwendungsbereiche

  • Geeignet für Kippflügel
  • Zu verwenden beim Einsatz eines Kettenantriebes an einem Kippfenster
  • Montage an Holz-, Kunststoff- oder Metallfenstern
  • Flügel- und Rahmenmontage

Downloads

Varianten & Zubehör

Kontakt

Wir helfen Ihnen gern +49-7152-203-0 Mo – Do: 7.30 – 17.00 Uhr /Fr: 7.30 – 16.00 Uhr Architektenhotline +49-7152-203-112 Mo – Do: 9.00- 16.00 Uhr / Fr: 9.00 – 15.00 Uhr Service Hotline +49-1802-923392 (0,06 € / Anruf aus dem Festnetz, Mobilfunk max. 0,42 €)