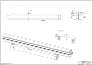
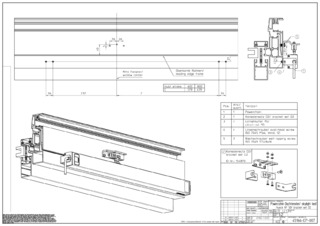
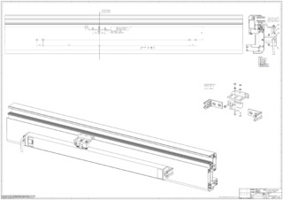
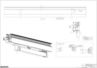
Powerchain Kettenantrieb für große und schwere Fensterelemente, die große Öffnungsweiten erfordern
- Schnelle Öffnungsgeschwindigkeiten im RWA-Fall auch bei sehr schweren Fenstern
- Stufenlos einstellbarer Antriebshub und individuelle Geschwindigkeiten für Lüftung und RWA
- Als Sonderausführung erhältlich - Hub, Kabellänge und Farbe konfigurierbar
- Synchronisierung von max. vier Antrieben ohne externes Steuergerät
- DIP-Schalter zur Umstellung der Betriebsart (Solo und Syncro, Master, Slave)
- Einfache und schnelle Montage mit dem Smart fix Montagesystem
- IQ windowdrive - intelligente Antriebssteuerung
- Geprüft als Natürliches Rauch- und Wärmeabzugsgerät (NRWG) nach EN 12101-2
Anwendungsbereiche
- Rauch- und Wärmeabzugsanlage (RWA) und natürliche Lüftung (24 V) im Fassaden- und Dachbereich
- Einsatz im Abluft- und Zuluftsystem
- Einwärts und auswärts öffnende Fenster mit Kipp-, Klapp- und Drehflügeln
- Dachfenster
- Montage an Holz-, Kunststoff- oder Metallfenstern
- Flügel- und Rahmenmontage
- Synchronisierung von bis zu vier Antrieben
- Systemlösung in Kombination mit dem Verriegelungsantrieb Power lock
Einbausituationen in Referenzobjekten und Videos
Sicherheitshinweis
Herabstürzende Fensterflügel können eine erhebliche Gefahr für Leib und Leben von Personen, die sich im Umkreis befinden, darstellen. Daher ist im Einsatz von GEZE Antrieben an Kippfenstern die Verwendung von GEZE Sicherheitsscheren zwingend vorgeschrieben.
Technische Daten zum Produkt
| Powerchain | |
| Abmessungen | 36 x 51 mm |
| Platzbedarf auf Rahmen (min.) | Rahmenmontage EW: 50/61 mm (für Drehflügel DIN L), Flügelmontage EW: 30/41 mm (für Drehflügel DIN R), Rahmenmontage AW: 50 mm |
| Platzbedarf auf Flügel (min.) | Rahmenmontage EW: 40 mm, Flügelmontage EW: 50 mm, Rahmenmontage AW 30/41 mm (für Drehflügel DIN R) |
| Öffnungsgeschwindigkeit RWA | 15 mm/s |
| Öffnungsgeschwindigkeit Lüftung | 5 mm/s |
| Schließgeschwindigkeit (max.) | 5 mm/s |
| Druckkraft (max.) | 600 N (hubabhängig), siehe Kraft-Weg-Diagramm |
| Zuhaltekraft (max.) | 3000 N |
| Zugkraft | 600 N |
| Flügelgewicht | 200 kg* |
| Überschlagbereich | 0 - 23 mm (abhängig von Anwendung und Konsolensatz) |
| Spannung im Betrieb | 24 V ± 25 % |
| Betriebsspannung | 24 V DC |
| Stromaufnahme | 1.5 A |
| Stromaufnahme nach Anwendungsbereich | Lüftung (24 V): 1,2 A; RWA (18 V): 1,5 A |
| Leistungsaufnahme | 36 W |
| Einschaltdauer | 30 % |
| Sonderlänge Anschlusskabel | 5 m 7.5 m |
| Min. Aderquerschnitt | 0.75 mm² |
| Anzahl der Adern | 4 Adern |
| Betriebstemperatur | -5 - 70 °C |
| Schutzart | IP40 |
| Schutzklasse | III |
| Syncro-Funktion | Ja |
| Öffnungsgeschwindigkeit einstellbar (Lüftung) | Ja |
| Zusätzliche Verriegelung erhältlich | Ja |
| Art der Zusatzverriegelung | Verriegelungsantrieb |
| Art der Hubverkürzung | Einstellgerät, Werkseinstellung |
| Endlagenabschaltung ausgefahren | elektronisch über internen Weggeber |
| Endlagenabschaltung eingefahren | elektronisch über Stromaufnahme |
| Überlastabschaltung | Ja |
| Komplette Öffnung innerhalb 60 s | ja, bis 800 mm Hub, inklusive Verriegelungsantrieb |
| NRWG geprüft | Ja |
| NRWG Zusatzinformation | ja, bis 800 mm Hub, inklusive Verriegelungsantrieb |
| Anzahl Synchronisierung Antriebe | 4 |
| KNX-fähig | Ja |
| Kippfenster EINWÄRTS Rahmenmontage | Ja |
| Kippfenster EINWÄRTS Flügelmontage | Ja |
| Kippfenster AUSWÄRTS Rahmenmontage | Ja |
| Drehfenster EINWÄRTS Rahmenmontage | Ja |
| Drehfenster EINWÄRTS Flügelmontage | Ja |
| Drehfenster AUSWÄRTS Rahmenmontage | Ja |
| Klappfenster EINWÄRTS Rahmenmontage | Ja |
| Klappfenster EINWÄRTS Flügelmontage | Ja |
| Klappfenster AUSWÄRTS Rahmenmontage | Ja |
| Dachfenster AUSWÄRTS | Ja |