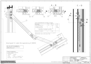
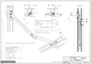
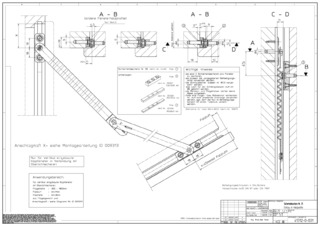
Sicherheitsschere Nr. 35 Für die Absicherung von Kippflügeln
- Ermöglichen eine dauerhaft feste Verbindung zwischen Fensterrahmen und Fensterflügel
- Einsetzbar ab einer Flügelhöhe von 300 mm
- Je nach Flügelhöhe und Flügelgewicht kann eine Öffnungsweite bis ca. 700 mm realisiert werden
- Pro Fensterflügel werden zwei Sicherheitsscheren benötigt
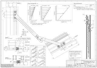
Anwendungsbereiche
- Geeignet für Kippflügel
- Zu verwenden beim Einsatz eines Kettenantriebes an einem Kippfenster
- Montage an Holz-, Kunststoff- oder Metallfenstern
- Flügel- und Rahmenmontage