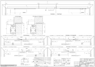
Gleitschiene 2-flügelig

TS 5000 L-ISM ECline Gleitschienentürschließersystem für barrierefreie, leicht öffnende zweiflügelige Türen bis 1250 mm Flügelbreite nach DIN 18040 mit integrierter Schließfolgeregelung

Gleitschienentürschließersystem TS 5000 ISM Türschließer für zweiflügelige Türen mit Schließfolgeregelung und mit integrierter Öffnungsdämpfung,was bewirkt, dass die stark aufgeworfene Türen abgebremst wird.
  • System mit zwei Türschließern TS 5000 ECline und ISM Gleitschiene BG
  • Barrierefrei nach DIN 18040 bis EN 5 (1250 mm Flügelbreite)
  • Stufenlos einstellbare Schließkraft von EN 3-5
  • Für rechts und links angeschlagene Türen ohne Umstellung verwendbar
  • Schließfolgeregelung hält den Gangflügel in Warteposition bis der Standflügel geschlossen ist
  • Hydraulischer Endschlag, der die Tür kurz vor Geschlossenlage beschleunigt
Mehr anzeigen
  • Schließgeschwindigkeit kann individuell angepasst werden
  • Integrierte Öffnungsdämpfung, bremst stark aufgeworfene Türen ab
  • Optische Schließkraftanzeige zum leichten Kontrollieren der Einstellung
  • Alle Funktionen von vorn einstellbar und kein höherer Montageaufwand gegenüber Standardsystemen
Kontaktieren Sie uns

Anwendungsbereiche

  • Feuer- und Rauchschutztüren
  • Zweiflügelige rechte und linke Anschlagtüren
  • Symmetrische und asymmetrische Türteilung möglich
  • Anschlagtüren bis 2500 mm Bandabstand und 1250 mm Flügelbreite
  • Minimaler Bandabstand 1300 mm, minimale Breite des Standflügels 400 mm
  • Türblattmontage Bandgegenseite
  • Barrierefreie Zugänge nach DIN 18040 bis EN 5

Technische Daten zum Produkt

TS 5000 L-ISM ECline
Barrierefrei nach DIN 18040 bis Flügelbreite (max.) in mm 1250 mm
Flügelbreite (max.) 1250 mm
Montageart Türblattmontage Bandgegenseite
Öffnungswinkel (max.) 130 °
Minimaler Bandabstand 1360 mm
Minimale Standflügelbreite 380 mm
Eignung Brandschutztüren Ja
Schließkraft einstellbar Ja, stufenlos
Schließgeschwindigkeit einstellbar Ja
Endschlag einstellbar Ja, über Ventil
Öffnungsdämpfung integriert Ja, hydraulisch einstellbar
Position Schließkraftverstellung Vorn
Optische Schließkraftanzeige Ja
Feststellung Optional
Schließfolgeregelung integriert Ja

Downloads

Kontakt

Wir helfen Ihnen gern +49-7152-203-0 Mo – Do: 7.30 – 17.00 Uhr /Fr: 7.30 – 16.00 Uhr Architektenhotline +49-7152-203-112 Mo – Do: 9.00- 16.00 Uhr / Fr: 9.00 – 15.00 Uhr Service Hotline +49-1802-923392 (0,06 € / Anruf aus dem Festnetz, Mobilfunk max. 0,42 €)