E-Gleitschiene TS 5000 BG

Sturzfutterwinkel E-Gleitschiene BG TS 5000 für E-Gleitschiene

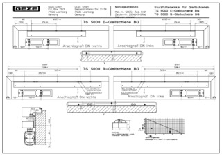
Sturzfutterwinkel Gleitschiene BG
  • Mit Bohrungen für die Befestigung
Kontaktieren Sie uns

Anwendungsbereiche

  • Montage der Gleitschiene im Sturz bei Montage auf Bandgegenseite

Downloads

Varianten & Zubehör

Kontakt

Wir helfen Ihnen gern +49-7152-203-0 Mo – Do: 7.30 – 17.00 Uhr /Fr: 7.30 – 16.00 Uhr Architektenhotline +49-7152-203-112 Mo – Do: 9.00- 16.00 Uhr / Fr: 9.00 – 15.00 Uhr Service Hotline +49-1802-923392 (0,06 € / Anruf aus dem Festnetz, Mobilfunk max. 0,42 €)