Boxer 1-flügelig

Boxer E Integrierter Türschließer für einflügelige Türen bis 1400 mm Flügelbreite mit elektrischer Feststellung

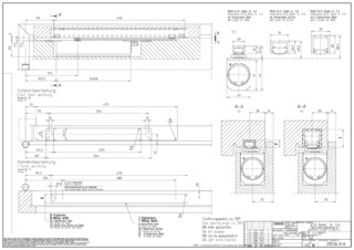
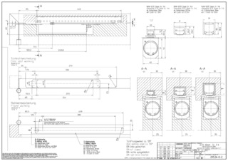
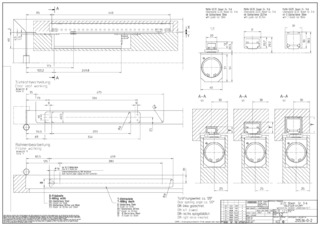
Türschließer Boxer E Integrierter Türschließer für einflügelige Türen bis 1400 mm Flügelbreite. Der Türschließer ist in das Türblatt und die Zarge eingelassen und erfüllt höchste Designansprüche. Hydraulischer Endschlag, der die Tür kurz vor Geschlossenlage beschleunigt.
  • Stufenlos einstellbare Schließkraft von EN 2-4 oder EN 3-6
  • Für rechts und links angeschlagene Türen ohne Umstellung verwendbar
  • Türschließer ist in Türblatt und Zarge eingelassen und erfüllt höchste Designansprüche
  • Elektrische Feststellung in der Gleitschiene mit Feststellbereich 80°-120°
  • Haltekraft der Feststellung ist stufenlos einstellbar
  • Rauchschalterzentrale anschließbar, deren Signal im Brandfall die Tür selbstständig schließen lässt
Mehr anzeigen
  • Integrierte Öffnungsdämpfung, bremst stark aufgeworfene Türen ab
  • Hydraulischer Endschlag, der die Tür kurz vor Geschlossenlage beschleunigt
  • Schließgeschwindigkeit kann individuell angepasst werden
  • Alle Funktionen sind im eingebauten Zustand einstellbar
Kontaktieren Sie uns

Anwendungsbereiche

  • Feuer- und Rauchschutztüren, Eignungsnachweis mit der Tür erforderlich
  • Rechte und linke Anschlagtüren
  • Anschlagtüren bis 1400 mm Flügelbreite, für Türgewichte bis 180 kg
  • Für Türblattstärken ab 40 mm
  • Integrierte Montage
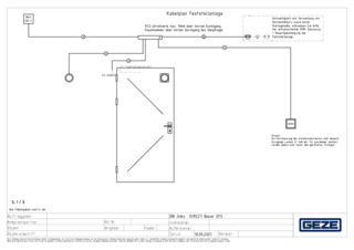
  • Feststellanlagen mit integrierter Feststellung

Technische Daten zum Produkt

Boxer E
Schließkraft nach EN 1154 EN 2 - 6
Barrierefrei nach DIN 18040 bis Flügelbreite (max.) in mm 1400 mm
Flügelbreite (max.) 1400 mm
Flügelgewicht (max.) 180 kg
Montageart Verdecktliegend
Öffnungswinkel (max.) 120 °
Eingangsspannung 24 V DC
Eignung Brandschutztüren Ja
Schließkraft einstellbar Ja, stufenlos
Schließgeschwindigkeit einstellbar Ja
Endschlag einstellbar Ja, über Ventil
Öffnungsdämpfung integriert Ja, hydraulisch einstellbar
Position Schließkraftverstellung Oben
Feststellung Elektrisch
Feststellbereich 80 ° - 120 °

Downloads

Kontakt

Wir helfen Ihnen gern +49-7152-203-0 Mo – Do: 7.30 – 17.00 Uhr /Fr: 7.30 – 16.00 Uhr Architektenhotline +49-7152-203-112 Mo – Do: 9.00- 16.00 Uhr / Fr: 9.00 – 15.00 Uhr Service Hotline +49-1802-923392 (0,06 € / Anruf aus dem Festnetz, Mobilfunk max. 0,42 €)