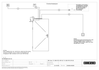
TS 5000 RFS 3-6 Gleitschienentürschließer für einflügelige Türen bis 1400 mm Flügelbreite mit elektrischer Freilauffunktion und Rauchschalterzentrale
- Stufenlos einstellbare Schließkraft von EN 3-6
- Betriebsspannung 230 V AC
- Für rechts und links angeschlagene Türen ohne Umstellung verwendbar
- Freilauffunktion nach einmaligen Öffnen der Tür auf ca. 90°
- Komfortrastfunktion arretiert die Tür am Ende des Freilaufbereichs
- Integrierte Rauchschalterzentrale, deren Signal im Brandfall die Tür selbstständig schließt
- Rauchschalter mit Verschmutzungsanzeige und Alarmschwellennachführung
- Zusätzliche Rauchmelder anschließbar
- Hydraulischer Endschlag, der die Tür kurz vor Geschlossenlage beschleunigt
- Schließgeschwindigkeit kann individuell angepasst werden
- Optische Schließkraftanzeige zum leichten Kontrollieren der Einstellung
- Alle Funktionen von vorn einstellbar
Anwendungsbereiche
- Feuer- und Rauchschutztüren
- Rechte und linke Anschlagtüren
- Anschlagtüren bis 1400 mm Flügelbreite
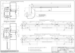
- Türblattmontage Bandseite
- Feststellanlagen mit integrierter Feststellung mit Freilauf
- Barrierefreie Zugänge nach DIN 18040
Einbausituationen in Referenzobjekten und Videos
Technische Daten zum Produkt
| TS 5000 RFS 3-6 | |
| Schließkraft nach EN 1154 | EN 3 - 6 |
| Barrierefrei nach DIN 18040 bis Flügelbreite (max.) in mm | 1400 mm |
| Flügelbreite (max.) | 1400 mm |
| Montageart | Türblattmontage Bandseite |
| Öffnungswinkel (max.) | 180 ° |
| Eingangsspannung | 230 V AC |
| Eignung Brandschutztüren | Ja |
| Freilaufbereich | 85 ° - 160 ° |
| Schließkraft einstellbar | Ja, stufenlos |
| Schließgeschwindigkeit einstellbar | Ja |
| Endschlag einstellbar | Ja, über Ventil |
| Öffnungsdämpfung integriert | Nein |
| Position Schließkraftverstellung | Vorn |
| Optische Schließkraftanzeige | Ja |
| Feststellung | Elektrisch, für Freilauffunktion |
| Rauchschalter integriert | Ja |